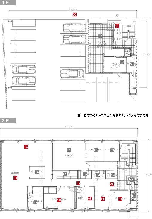
Facade/Flame
Approach
Shop
Backyard
Machine room
Reception
Hall
Conceptionload
Manager room
Meeting room
GM Guest room
Design room
Screen
WC
Utility
Stock room
Workshop